EdilfidenzaDue

Lotto 42


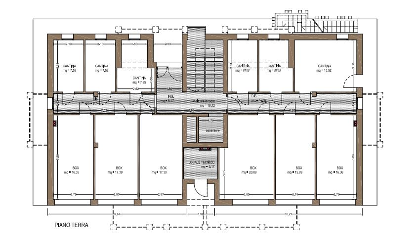
Due edifici condominiali da sei unità immobiliari cadauno situato nel quartiere Europa. Gli appartamenti hanno tre affacci sull'esterno tramite due balconi e una loggia. L'appartamento tipo è costituito da soggiorno, cucina, disimpegno, tre camere e due bagni. La superficie non residenziale è costituita da cantina e autorimessa. Prezzo altamente vantaggioso.

 

Caratteristiche

La struttura portante è costituita da blocchi cassero legno-cemento ISOTEX coibentata con polistirene espanso alla grafite.

Le abitazioni sono provviste di:

  • Serramenti con vetrocamera dotata di rivestimento basso-emissivo e avvolgibili esterni motorizzati.
  • Impianto di riscaldamento centralizzato con sistema di emissione a pavimento radiante ed alimentato da sottostazione TLR.
Download

Planimetrie e prospetti


Hai bisogno di ulteriori informazioni?
Non esitare a contattarci!