Spazio, qualità e indipendenza

Villette a schiera "I Salici" (Disponibili villetta 2, villetta 5)


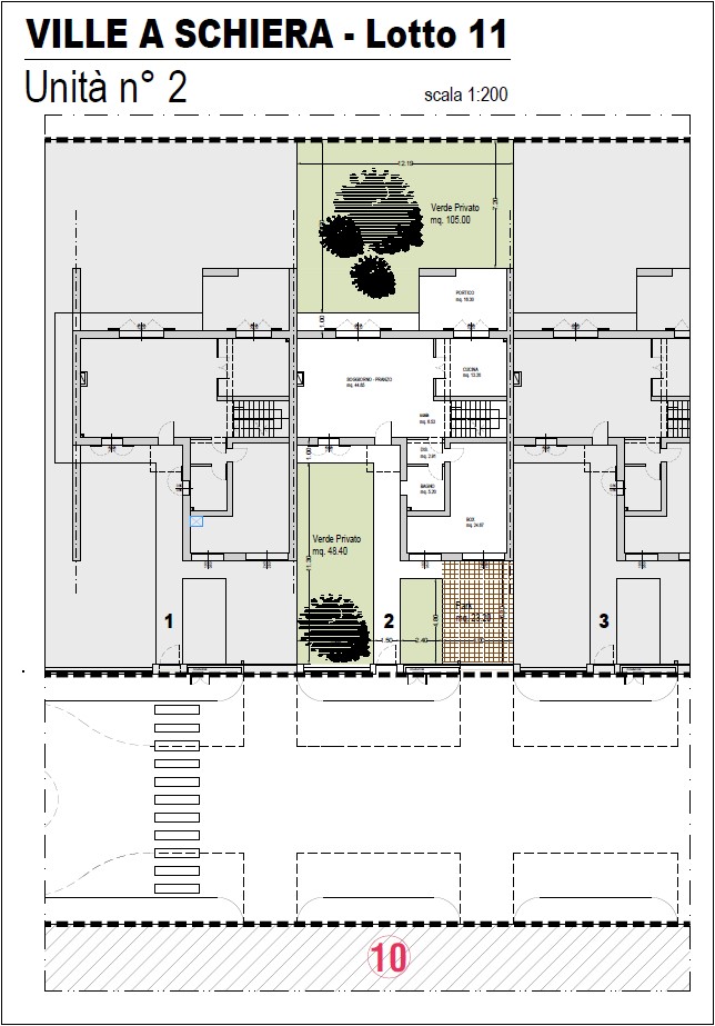
Le villette a schiera offrono tutta la comodità di una casa indipendente con finiture di alto livello e ampi spazi da vivere. Ogni abitazione ha una superficie commerciale di circa 250 m², è GAS-FREE, in classe energetica A4, ed è costruita secondo i più alti standard prestazionali e architettonici.

Al piano terra:
  • Ingresso dalla nuova via Amelia Rosselli, con pavimentazione in autobloccanti e cancello scorrevole
  • Giardino fronte e retro, posto auto esterno su superficie drenante
  • Autorimessa con accesso diretto alla casa
  • Luminosa zona giorno con cucina in ampio open space
  • Bagno e locale tecnico/lavanderia
  • Accesso al giardino e al portico posti sul retro tramite ampie porte-finestre scorrevoli
Al piano superiore:
  • Tre camere da letto di cui due matrimoniali con accesso al balcone e al terrazzo
  • Ampio bagno principale
  • Soffitta con copertura in legno a vista
  • Terrazzo fronte parco e balconi su entrambi i lati della casa
Dotazioni incluse:
  • Impianto fotovoltaico da 6 kW con inverter ibrido predisposto per batterie
  • Impianto di riscaldamento con pavimento radiante
  • Pompa di calore aria-acqua per riscaldamento, preparazione acqua calda sanitaria ed eventuale raffrescamento a pavimento
  • Predisposizione per raffrescamento (a multisplit o a pavimento)
  • Videocitofono, cancello carrabile predisposto per motore e cancello pedonale
  • Serramenti in pvc Finstral con vetrocamera a rivestimento basso-emissivo e persiane in alluminio
  • Allaccio alla rete di irrigazione con pozzo di quartiere

Villette disponibili: villetta 2, villetta 5

 

FINO A DICEMBRE È POSSIBILE USUFRUIRE DEL SISMABONUS 2025 CON VANTAGGIOSE DETRAZIONI!

Bonus di 48.000 euro detraibile in dichiarazione dei redditi.

 

 

Download

Planimetrie e prospetti - lotto 11 (Disponibili 3, 5)


Hai bisogno di ulteriori informazioni?
Non esitare a contattarci!